


Spesifikasi |
|
| Dokumen Kepemilikan | Sertifikat Hak Milik (SHM) |
| No. Aset | - |
| Jenis Agunan | |
| Bukti Kepemilikan | - |
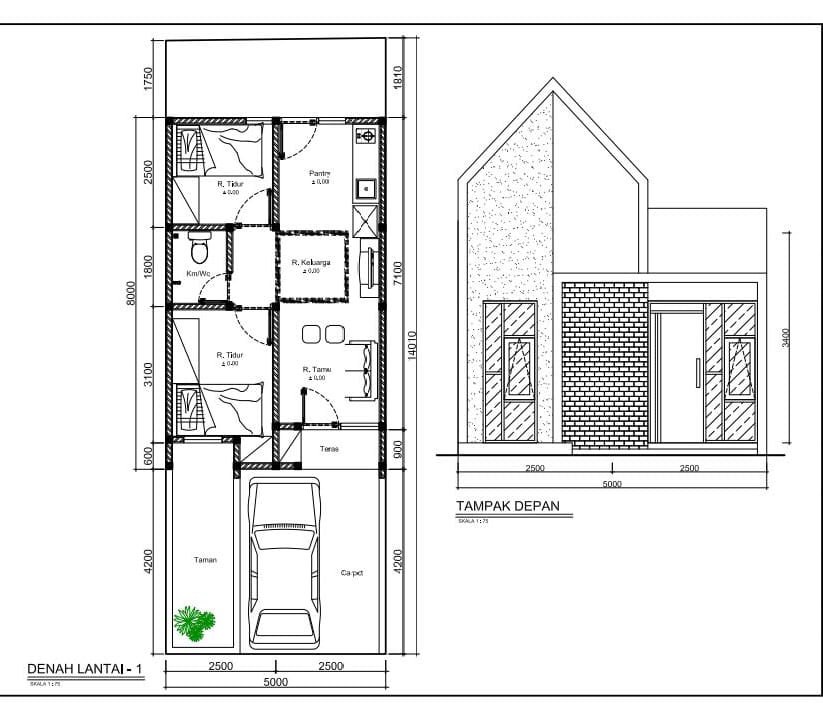
| Luas Tanah | 70 m2 |
| Luas Bangunan | 40 m2 |
| Fasilitas | - Pondasi: Batu Kali - Struktur: Beton Bertulang - Rangka Atap: Baja ringan - Jendela: Alumunium uk. 3Inc - Pintu Utama: Kayu Solid, - Pintu Kamar tidur: Multi & HPL - Genting: Spandek - Lantai Ruangan: Granit 60x60 - Lantai Km Mandi: Granit/Keramik - Air: Artesis - Elektrikal: Standar SNI, 1300W |
| Keunggulan Aset | - Lokasi Strategis - 5 Menit ke Surapati Core - 5 Menit ke Jl. HPP Mustofa - 8 Menit ke Terminal Cicaheum - 10 Menit ke Universitas Widyatama - 15 Menit ke Gazibu - Dekat Sekolah - Dekat Rumah Sakit - Dekat Pusat Perbelanjaan - dekat Destinasi Wisata Bandung Utara (Tebing Keraton, Caringin Tilu, Dll) |
| Alamat Lengkap | Jl. Pasir Luhur, Cimenyan, Kec. Cimenyan, Kabupaten Bandung, Jawa barat, 40197 |
| Kabupaten/Kota | Kota Bandung |
| Nomor PIC | +62 822-1130-0700 (Asep) +62 822-4011-2521 (Irwan) |